


Oak House, Suffolk
Rear extension to listed thatched cottage




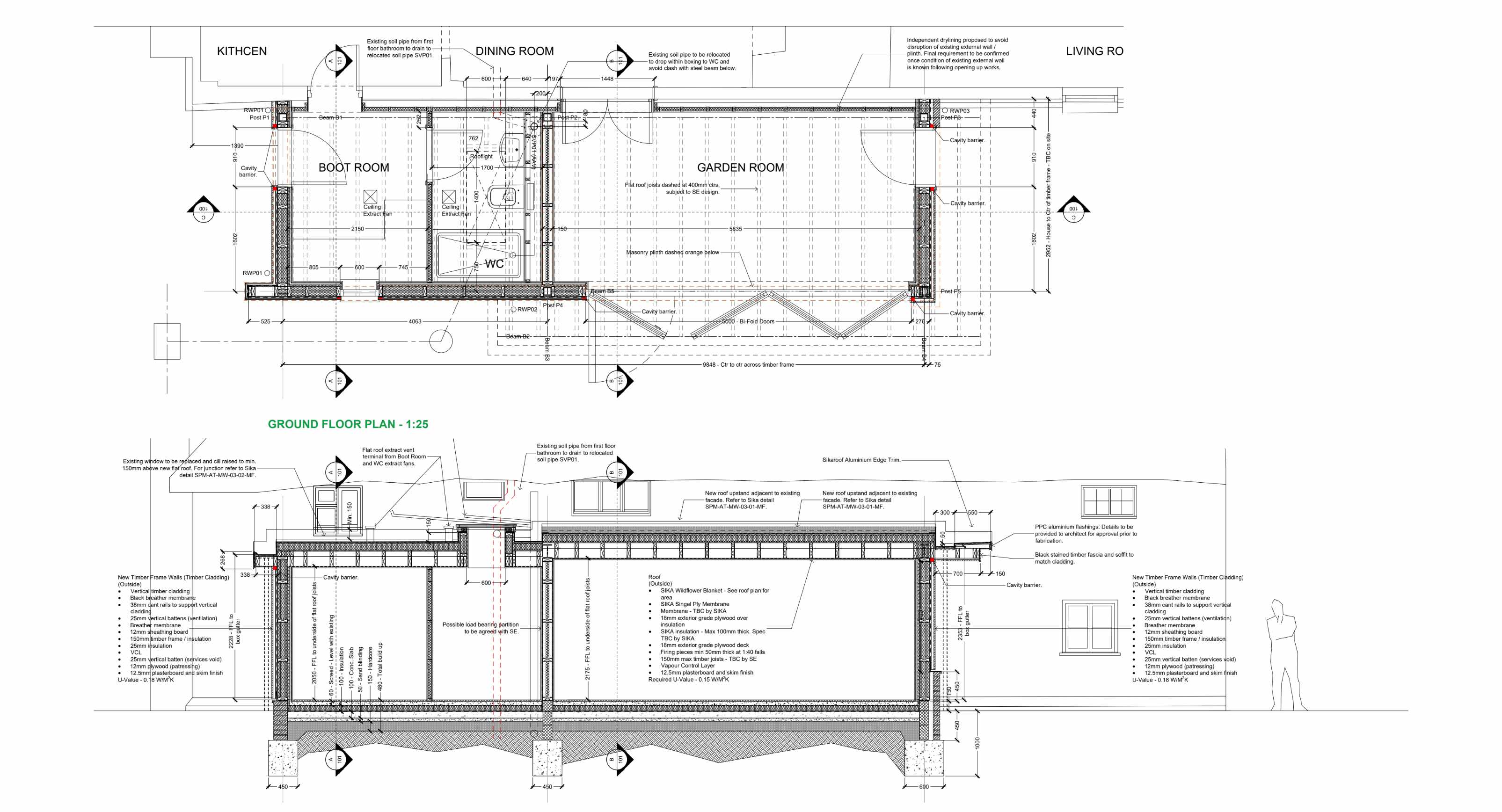
The owners of Oak House have identified the need to open-up and repair the west (rear) elevation. Doing so would require the demolition of an existing flat roofed extension. As such the client asked FFA to consider how a contemporary addition to the listed cottage could recreate the existing WC and rear lobby and include a new Garden Room with improved access to the rear garden.
Following a positive Pre App, Planning and Listed Building Consent have been secured. FFA have coordinated the structrual repairs an new independant structural frame for the extension to obtain Building Regulation approval and provide Tender information.

